Добро пожаловать на http://vipplan.ru

Випплан Александров - это тысячи проектов домов в нашем каталоге!

Вы всегда сможете найти для себя проект дома вашей мечты! Даже если этого не случилось, мы готовы в любую минуту предложить проект индивидуального дома.

Забыли пароль?
Вы еще не регистрировались?

Перейдите по ссылке ниже на страницу регистрации.

Регистрация...

Внимание!!!

В проектную документацию могут быть внесены изменения любой сложности, в соответствии в Вашими пожеланиями!

Полезные статьи

Правильная изоляция подвала

Какой выбрать материал, как правильно выполнить работу, перед началом изоляции подвала какие подготовительно-строительные работы следует провести и какой момент играет правильное выполнение работ. Последние несколько лет придали много хлопот жильцам домов, увлажнив им подвалы. Этот период показал насколько важно обеспечить надлежащую защиту зданий от грунтовых вод и воздействия влаги....

Приготовление раствора для наливного пола

Если вы хотите чтобы пол получился ровным, наливные полы – лучший вариант. Особое внимание следует уделить приготовлению раствора. А все потому, что после нанесения на цементную стяжку или бетонное основание внести коррективы или изменить что-либо уже не получится. Поэтому к замешиванию раствора стоит подходить очень внимательно....

Проекты домов и коттеджей > Каталог проектов домов > Проект двухэтажного таунхауса Vg992

Проект двухэтажного таунхауса Vg992

Проект двухэтажного таунхауса
Зарегистрируйтесь

Проект № Vg992


Техническое описание
Общая площадь: 307.71 м2
Жилая площадь: 270.64 м2
Высота здания: 9 м
Размеры дома: 11м×16м
Кол-во комнат: 4
Цокольный этаж: нет
Гараж: нет
Мансарда: нет

Kонструкция
Фундамент: Ленточный
Перекрытия: Монолитные перекрытия
Материал стен: Газобетон

Архитектурный раздел
АР+КР - 84 000 (Со скидкой 20%)
Проект индивидуального двухэтажного четырехквартирного жилого дома с мансардой размерами здания 10,64 х 16,04 м. Наружная отделка здания: фасадная штукатурка. Фундамент – ленточный монолитный ж/б, стена в грунте - «щелевой». Наружные стены: газобетонные блоки , пенополистирол, фасадная штукатурка. Внутренние стены - из газобетонных блоков. Перегородки выполняются из газобетона. Снаружи вентканалы и дымоходы отделываются штукатуркой.. Перемычки - монолитные и сварные из профиля проката. Пол первого этажа - пол по грунту. Пол второго этажа — монолитное ж/б. Чердачное прекрытие — по деревянным балкам. Кровля — битумная черепица, многоскатная. Окна - металлопластиковые, выполненные по индивидуальному заказу.
Генплан застройки участка / Паспорт проекта 7000 руб / 10000 руб
Инженерный раздел (полный) 154000 руб
Смета на строительство 77000 руб
Теплотехнический расчет материалов стен Бесплатно
Стоимость проекта со незначительнми изменениями 97300 руб
Стоимость проекта со средними изменениями* 120400 руб
Стоимость проекта со значительными изменениями** 126600 руб

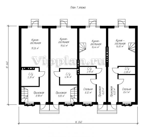
План первого этажа


Гостиная — 19,26 м2
С/у — 5,39 м2
Прихожая — 8,98 м2
Гостиная — 19,63 м2
С/у — 4,94 м2
Прихожая — 9,05 м2
Гостиная — 16,44 м2
С/у — 2,19 м2
Спальня — 8,32 м2
Прихожая — 6,23 м2
Гостиная — 16,83 м2
С/у — 2,28 м2
Спальня — 8,41 м2
Прихожая — 6,23 м2

Проект двухэтажного таунхауса

Проект двухэтажного таунхауса

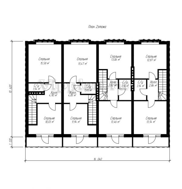
План второго этажа


Холл — 4,90 м2
С/у — 1,54 м2
Спальня — 15,58 м2
Спальня — 10,03 м2
Холл — 4,85 м2
С/у — 1,95 м2
Спальня — 15,47 м2
Спальня — 9,94 м2
Холл — 2,82 м2
С/у — 3,14 м2
Спальня — 13,06 м2
Спальня — 13,46 м2
Проект двухэтажного таунхауса Проект двухэтажного таунхауса Проект двухэтажного таунхауса Проект двухэтажного таунхауса
Внесение изменений и привязка к участку строительства

В любой из проектов от компании VIPplan - Александров по вашему желанию могут быть внесены изменения в материалы стен, материалы наружной отделки дома, а также будет произведена адаптация проекта под конкретный регион строительства (с учетом грунтов региона, геологических особенностей вашего участка и местных климатических условий) - БЕСПЛАТНО !!! (кроме проектов со скидкой и проектов наших партнеров).

Любой из проектов, размещенных на сайте aleksandrov.vipplan.ru мы можем выполнить из требуемых вам строительных материалов: ячеистый бетон (газобетон, пеноблок), керамоблок, кирпич, шлакоблок, бетонный блок, дерево (брус, клееный брус), каркасная технология (деревянный каркас, металлокаркас (ЛСТК)).

Фасад дома и его наружную отделку так же возможно выполнить с применением различных облицовочных материалов: структурной штукатурки, (с утеплителем и без), сайдингом (пластиковый или металлосайдинг), фиброплитами, кирпича.

 
6 Избранные
проекты

Доставка проектов по России: Москва (Московская область), Санкт-Петербург (Ленинградская область), Краснодар, Ростов-на-Дону, Ставрополь, Сочи, Волгоград, Новосибирск, Белгород, Брянск, Воронеж, Саратов, Хабаровск, Астрахань, Нальчик, Владикавказ, Екатеринбург, Тюмень, Самара, Нижний Новгород, Казань, Пермь, Уфа, Челябинск, Красноярск, Ханты-Мансийск, Иркутск, Курган, Оренбург, Омск, Томск, Барнаул, Новокузнецк, Кемерово, Абакан, Чита, Якутск, Южно-Сахалинск, Петропавловск-Камчатский и страны ближнего зарубежья: Белоруссия, Украина, Казахстан